24/7 Contact Support
We are here to support and help answer any questions that you might have
Qualified Staff
We have a diverse staff including Structural Engineers with years of experience
Easy Payments
We accept a wide variety of payment options
Custom Home Additions Designed for Comfort, Space & Value
Need more room but love your current home? Whether your family is growing, you need a home office, or you simply want more functional space, Bora Construction Group specializes in high-quality home additions that blend seamlessly with your existing structure.
We are here to support and help answer any questions that you might have
We have a diverse staff including Structural Engineers with years of experience
We accept a wide variety of payment options
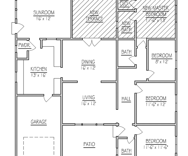
A home addition is a structural expansion that increases your home’s square footage. It can involve building new rooms, expanding existing spaces, or adding new levels to your home.
Unlike minor remodels, additions involve foundation work, framing, roofing, electrical, plumbing, insulation, and finishing — all completed while maintaining structural integrity and building code compliance.
At Bora Construction Group, we handle everything from concept to completion.
Your home should grow with you. Instead of going through the stress of moving, a professionally designed home addition allows you to:
A well-planned addition can completely transform the way you experience your home.
Below are high-demand home additions homeowners love

Add a completely new bedroom, guest room, or office space to your home.
Perfect for:
Growing families
Remote workers
Multi-generational living

Double your living space without expanding your home’s footprint.
Ideal for:
Small lot sizes
Major value increase
Full-home transformation

A small extension that increases space in kitchens, bathrooms, or bedrooms without a full addition. Budget-friendly & highly functional.

Enjoy natural light year-round with insulated glass walls and energy-efficient construction. Great for:
Relaxation
Entertaining
Indoor-outdoor living

Convert unused garage space into:
Guest suites
Rental units
Home gyms
Offices

Transform your unfinished basement into:
Living space
Entertainment room
In-law suite
Rental space

Turn unused attic space into:
Bedroom
Study area
Creative studio

Expand with:
Covered patios
Outdoor kitchens
Enclosed porches
Deck extensions

Pre-built sections are assembled on-site for faster construction and lower disruption.
Home addition costs vary depending on
Larger additions cost more due to materials and labor.
Custom architecture, structural changes, and premium finishes increase cost.
Flooring, windows, roofing, insulation, and exterior finishes impact pricing.
Municipal permit requirements vary by location.
We ensure everything meets safety and quality standards.
At Bora Construction Group, we follow a streamlined, transparent process:
We keep you informed every step of the way.
We don’t just build additions — we build long-term value and comfort.
A home addition is an investment that pays off both financially and emotionally.
Project timelines depend on size and complexity but typically range from several weeks to a few months.
Yes, most additions require permits to ensure code compliance.
Yes. Well-designed additions significantly increase resale value.
In most cases, yes — depending on the scope of work.
Bump-outs and garage conversions are typically more budget-friendly options.
Let Bora Construction Group design and build the perfect addition tailored to your lifestyle.